

客戶需求
太宇鋼(gang)鐵有限公司是泰國主要(yao)的鋼(gang)鐵廠之一,其從事生產高(gao)質量的鋼(gang)材,不(bu)僅滿足國內(nei)鋼(gang)材需求,還覆蓋(gai)東南亞市場。
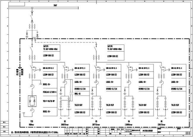
為了滿(man)足蓬勃發(fa)展的市場需(xu)求,太宇鋼鐵(tie)公司啟(qi)動了一個擴建項(xiang)目,旨在安裝(zhuang)一個額外(wai)的 EAF (55MVA + 20 % 超荷載)和一個額外(wai)的 LF (12MVA),以使(shi)其(qi)生產率提高一倍。這些新(xin)負載將由額定功率為 80MVA 的新 115 千伏(fu)/ 35 千(qian)伏電(dian)力變壓器供電(dian)。雖然電(dian)弧爐是制造(zao)高(gao)質(zhi)量鋼的好方(fang)法,但(dan)它給(gei)電(dian)廠的電(dian)力系統(tong)帶來了(le)多種電(dian)能質(zhi)量問(wen)題,如(ru)低功率因數(shu)、高(gao)諧(xie)波(bo)、電(dian)壓波(bo)動、閃變和不平(ping)衡(heng)。
RXPE 解決方案
經過仔細的系統研究,RXPE 在太宇鋼鐵公司提出了一個 95Mvar SVC 的方案已解決如上問題。
客戶利益
太宇鋼(gang)鐵公(gong)司(si) SVC 于 2017 年(nian)投(tou)產。隨著 SVC 裝置(zhi)的(de)投入使(shi)用,太宇(yu)鋼鐵成功(gong)通(tong)過新的(de)熔爐提高了(le)生產(chan)率,同時又完全符(fu)合泰(tai)國的(de)電能(neng)質量要求。
Copyright 2025 yxlhw.com | All rights Reseved
